Commercial, Office, Retail & Medical Space
- $20
Commercial, Office, Retail & Medical Space
- $20
Overview
Property ID: 603221
- Commercial, Industrial
- 1,016 - 4,818 Sq Ft
- 603221
Description
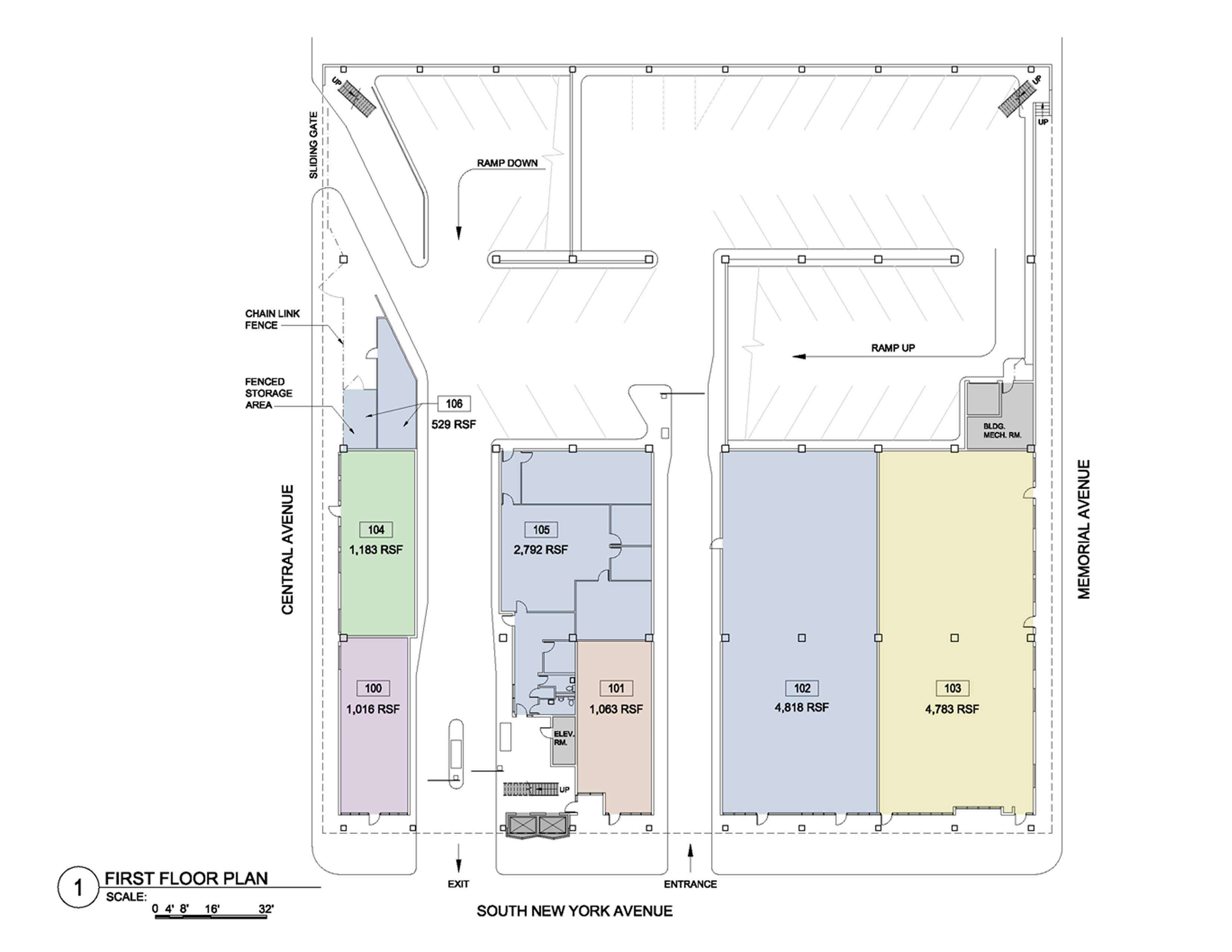
Commercial, Office, Retail & Medical Space Available at 17 S. New York Avenue. Centrally located in Atlantic City’s business district and surrounded by new development, professional office, and medical users. Five suites available ranging from 1,016 SF to 4,818 SF, with up to 9,601 SF contiguous. Each suite is self-contained and features window-lined façades offering excellent visibility and natural light.
Available Suites
- Suite 100: 1,016 SF corner unit
- Suite 101: 1,063 SF corner unit
- Suite 102: 4,818 SF fully built-out office space (formerly occupied by a state entity)
- Suite 103: 4,783 SF medical suite with professional layout suitable for all medical uses
- Suite 105: 2,792 SF office space, fit-out ready
Property Documents
First-Floor-Plans
Address
Open on Google Maps-
Address: 17 S New York Ave.
-
City: Atlantic City
-
State/county: New Jersey
-
Zip/Postal Code: 08401
-
Area: Casino District
Details
Updated on January 28, 2026 at 5:40 pm-
Property ID 603221
-
Price $20
-
Property Size 1,016 - 4,818 Sq Ft
-
Property Type Commercial, Industrial
-
Property Status For Rent
- Lee Jerome























